Admiral (8-man) 24ft Static Welfare Unit “Fresh Water Flush Toilet System"
Premium 8-person static welfare unit (24x9) with chemical toilet, canteen, drying room, and hybrid power—engineered for spacious, compliant site welfare in demanding environments.
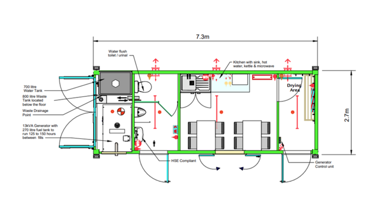
- 7.3m x 2.7m (24’ x 9’) overall size, seating up to eight persons.
- Canteen with sink, hot water, worktop, microwave and kettle.
- Large walk-through hanging / drying area before canteen.
- Toilet with water flush WC and urinal. Choose weekly, fortnightly or unscheduled toilet servicing. HSE compliant hot water wash station in toilet. Large water and waste tanks (700l and 800l).
- 13kVA generator with ample power for all on-board equipment. Power take-off to power an additional office or other unit if required. 270l fuel tank to run 125-150 hours between fills. Engine modification kit as standard to extend oil change interval to 1000 hours.
- High Security Steel shell with double locks to doors.
- Jack legs for levelling.
Product Downloads
Back to




