Harbour (8-man) 20ft Static Welfare Unit
Static 8-person welfare unit with integrated diesel generator, canteen, drying room, hot/cold water, and re-circulating toilet—designed for comfort, efficiency, and rapid setup on site.
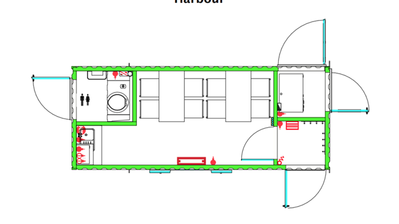
- 6.1m x 2.4m (20’ x 8’) overall size.
- Large open plan interior space for office or canteen for up to eight.
- Big on the inside, small on the outside.
- Kitchen area with no-mains sink, microwave and kettle.
- Walk-through drying area with down-flow heater and vent.
- No-mains toilet including weekly service in accordance with BS6465. This is sufficient for 280 man hrs between services
- Toilet includes HSE compliant no-mains hot water wash station.
- 9kVA compact generator with remote start / stop control. Timer shuts down generator when not in use. 200l fuel tank to run approx 70hrs between fills. Heavy duty high security steel shell with double deadlocks to doors.
Product Downloads
Back to




